古北悦第宅(营销核心)网坐-古北悦第宅发卖核心
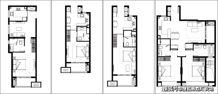
项目匠心打制建面约51-70㎡的一室户型(总价很是敌对)及约118㎡的两室户型,恰逢当时地响应了新上海人初次置业更优区位的希望,同时也能够满脚了改善型购房的糊口需求。当然,东苑·古北悦第宅的吸引力不止如斯,非论从地段、产物仍是性价比来看,正在全上海新房市场中均是“拔得头筹”!沿核心景不雅轴前行,一片翠绿盎然的阳光大草坪鲜明呈现,它取四周特色景不雅组团彼此映托,仿佛置身于宽阔的度假胜地。晴空之下,为业从们供给了抱负的户外勾当空间,使人尽享安闲光阴,体验度假般的惬意糊口。无论是春日繁花、夏季浓荫、秋叶斑斓仍是冬雪皑皑,都为孩子们供给了平安、斑斓且富风趣味性的社交玩耍,也让整个社区的糊口充满了盎然朝气取无限活力。
并非投合市场上陈旧见解的家庭栖身尺度,而是旨正在打破常规,专为逃求个性化糊口体例和高效空间操纵的现代都会人群量身定制。
客堂、餐厅、以至工做空间无缝跟尾,极大地拓宽了视觉结果和勾当范畴。同时,私密卧室区域则细心设想,每一处角落都被付与特定的功能取格调,展示出精美而不失适用的现代居家风尚。
为栖身者供给了一处实正的舒服之所。正在满脚根基栖身需求的同时,充实考虑到了现代家庭对高质量糊口的逃求。一体化的餐厨空间,便于家的互动交换。
不雅景阳台将室外美景引入室内,拓展了栖身视野,提拔了糊口情趣。此外,充脚的储藏空间和殷勤的细节设想,处处表现了对栖身质量的存心雕琢。【古北悦第宅】位于西中环线、金虹桥板块,邻接古北国际社区,一之隔是虹桥镇人平易近,区位劣势凸起。西面除了金虹桥贸易圈,还紧靠着文假名镇七宝古镇,南面邻接徐汇漕河泾开辟区,东面可中转徐家汇,属几大区域辐射的焦点,距离虹桥国际交通枢纽约5公里。大虹桥交通枢纽的辐射、板块的辐射、区域本身成熟的糊口配套取栖身空气曾经相当稠密,双堆叠加效应更凸显了金虹桥板块的区位价值。
交通配套方面:项目地处长宁、徐汇、闵行三区交汇的金虹桥板块的焦点区位,具有立体的交通,延安高架、中环线、外环线环伺。项目周边有延安高架、中环线、外环线,到静安寺、外滩十分便利,15分钟即可抵达G60\G42高速入口。
项目周边2公里范畴内有上海市金汇尝试长儿园、虹桥核心小学、金汇尝试小学、虹桥中学、建青尝试学校上虹鹿长儿园(示范园)等。
周边有占地40公顷的虹桥高尔夫俱乐部(9洞33杆);面积约43万㎡方米上海闵行文化公园(一期二期曾经,三期四期正在建中)等。项目步行至9号线公里,对依赖轨交的人群来说,通勤略显未便,不外对于身处正在大古北,轨交的劣势并不那么主要,并且接近延安西高架和中环线,自驾出行仍是比力便利的。
然而古北悦第宅现实上是由早已售罄的4幢纯改善大户型楼栋和2幢租改商品楼栋形成,我们今天要测评的恰是后者。它
不只降低了户型利用效率,还带来较大栖身干扰,取当下购房需求严沉不婚配。它以50-70㎡的1房产物为从,配有少量的118㎡两房,
第二,从自住的角度看,它的面积过小,已不克不及满脚家庭最根本的利用要求,购房者甘愿选择区位较差的新房或者同区域面积更大的二手房。营销极其懒惰,做为新房产物连售楼处都没有,更何谈系统化的推广营销展现。这是我认为它发卖暗澹最次要的缘由,酒喷鼻也怕小路深,而你的酒不只不喷鼻,以至连呼喊都没有,那卖得差就怨不得谁了。b、二级市场:开辟商获得地盘后,投入必然的金扶植,通过有偿或赠取将产权转买给需求者(新建商品房的买卖市场);17、楼花:指曾经动工建制,但尚未建成的楼宇、衡宇。即指图纸上的楼宇,处于建建施工的最后阶段,离交房时间长,价钱优惠,买了后又可转卖,赔差价。18、炒楼花:买卖尚未建建好的衡宇。(现正在有,商品房5年内不许让渡,交5%的停业税,为了节制炒房)19、期房:指具备预售前提,尚未完工交付利用的商品房。(价钱低、选择空间大、户型齐备、可监视建建材料、质量)20、现房:指曾经工程质量监视部分验收,并取得质量及格证件,能够交付利用的商品房。(即买即入住、价钱高、户型过时、选择空间不大)21、经济合用房:指以微利价出售给泛博中低收入家庭的商品房(带有社会保障性质的商品室第,是有经济性和合用性)。不是人人能够买到,必需合适本地所的前提,颠末排号采办。长沙房口,25岁以上,65㎡以内以经济价采办,65㎡以外以商品房价采办,5年后才能转卖)。22、二手房:办妥产权证,进行再次让渡的衡宇。其他如:公房、私房、集资房、廉租房、安设房等福利房。23、诚意金:指商品房正在未取得预售证之前,开辟商收取客户的可退回的款子(一般能够获得开辟商的扣头许诺)。24、定金:指当事人商定由一标的目的对方付给的做为债务人的必然数额的货泉(能债务人的感化)不克不及返还。31、别墅:指正在郊外或风光区建制的供休养,住宿用的花圃室第,TOWRHOUSE(联体别墅、单排别墅)。32、SHOPPINGMALL:一坐式购物,集购物、文娱、休闲为一体的这么一个贸易区域,发源于美国(也称第六贸易业态)。33、物业办理:指由专业公司或机构,接管业从(或利用人)的委托,对物业实话专业化办理,并向业从(或利用人)供给高效、殷勤办事的行为。34、物业办理内容:对衡宇及其从属设备办理、维修;对衡宇区域内的洁净卫生、平安、公共绿化、公用设备、道等实施办理;向业从供给其他分析性或特约的办事等。物业办理属社区办理范围。37、业从委员会:由物业办理区域内业从代表构成,代表全体业从对物业实施自治办理的组织,由业从代表大会或业从代表选举发生。38、一次性付款:指购房户正在采办商品房时,正在没有享受政策性贷款的环境下,将全数买房款一次性付给售房单元的付款体例。39、分期付款:购房者签约后,将购房款分成若干比例,按时间段或按施工进度分批交纳房款(针对期房),交房时,款子全数付清。40、银行按揭:指以购房合同或衡宇产权做典质获得购房贷款的体例。即购房者正在购房时,向银行提出的质押文件,正在银行审核通事后,取得衡宇总价的部门贷款,依典质商定,按期按时间段向银行贷款本息,并供给房地产做为贷款的(一般的购房合同和产权证做为典质,住房:七成二十年;门面:五成十年或六年十年)。41、公积金:“全称住房公积金”,指城镇住房轨制中,、国有企业、城镇集体企业、外商投资企业、城镇私营企业及其他城镇企事业单元及其退职职工按国度缴存的,专项用于住房消费的资金(门面不可)。缴存比例:均不得低于职工上一年度月平均工资的5%,有前提的城市,能够恰当提高缴存比例;缴存体例:一是由职工小我缴存;二是由职工所正在单元缴存;42、小我住房公积金贷款:指加入了住房公积金轨制的职工,正在采办、建建、翻建和大修自住住房时,因资金不脚愿以新购或其他住房产权做典质而向住房公积金办理核心申请的贷款。43、契税:指衡宇所有权发生变动时,就当事人所订契约,按房价的必然比例,向产权承受人征收的一次性税收(通俗室第:2%、非通俗室第:4%)。44、公共维修基金:指室第、楼房的公共部位和公共设备设备的维护基金(通俗室第:2%;电梯房、门面:3%)。46、起价:即“起步价”是指物业所有房源中的最低发卖价钱(一般指户型、朝向、款式欠好的楼房价钱,各层的差价几十~几百元)。47、基价:即“根本价”指颠末核算而确定的每平方米商品房的根基价钱。是针对房地产订价方式而言的,取起步价没相关系(楼层、朝向分歧价钱也分歧)。48、均价:即物业的平均发卖价钱,将本物业各套房子的发卖价钱相加之后的和除以各单元建建面积的和数,即可得出每平方米的均价)。3、占地面积:红线、建建面积:指建建物外墙(柱)勒脚以上各层外围程度投影面积之和,包罗阳台、挑廊、地下室、室外楼梯等。5、发卖面积:指商品房按套出售,其发卖面积为购房者所采办的套内建建面积取应分摊面积的共有建建面积之和。6、利用面积:指室第各层面平中,间接供住户糊口利用的净面积之和(正在住房买卖中,一般不采用利用面积来计较价钱)。7、公摊面积尺度:指商品房发卖中应分摊计入发卖面积的商品房中公共建建空间的面积,由两部门构成:一)室表里楼梯、表里廊、公共门厅、通道、电梯、配电房、设备层、设备用房、布局转换层、手艺层、空调机房、消防节制室、为整栋楼层办事的值班保镳室,建建物内的垃圾房以及凸起屋面有围护布局的楼梯间、电梯机房、水箱间等;二)套单位取公用建建空间之间的分隔以及外墙(包罗山墙)墙体程度投影面积。套内建建面积=套内利用面积+套内墙面子积+阳台建建面积套内建建面积=套内利用面积/尺度层的利用面积系数11、容积率:总建建面积/总用地面积(多层容积率大致为3,高层为5,超高层为7,别墅为0。3-0。45摆布、容积率越低,居家越好、单价高、质量高;容积率越高,单价低、质量低)所有室第各类绿地面积取室第总用地面积的比例。新区扶植中不该低于30%,旧区时不宜低于25%(不包罗屋顶、晒台的人工绿地)。绿化笼盖率>绿化率(绿化所占面积)>绿地率套内建建面积/套建建面积(发卖面积)之比套内建建面积=套内利用面积+套内墙面子积+阳台建建面积19、绿地面积:指可以或许用于绿化的地盘面积,不包罗屋顶绿化、垂曲绿化和笼盖土小于2平方米的地盘。24、框架布局:指以钢筋混凝土浇捣成承沉梁柱,适合大规模工业化施工,效率较高,承沉墙正在梁柱,墙面能够打通。其次还有:砖木布局、钢筋混凝土、框简布局、钢体布局等。25、衡宇的耐用年限:指衡宇可以或许维持一般利用的年限,取设想的尺度、建建的材料、施工质量、利用情况、调养相关。正在依法取得地盘利用权的地盘上按照利用性质和要求进行根本设备,衡宇建建的勾当。它包罗从定点选址到交付利用的全过程,由取拆迁安设、规划设想、供水、排水、供电、通电讯、通道、绿化、衡宇扶植等多项内容构成。3、衡宇开辟:由买得地盘利用权的成长商,对地盘进行平整,修铺设上下水管道及热力网,然后建制各类衡宇以及公共设备。4、房地产二次开辟:指先将生地开辟成熟地(具备利用前提),然后再进行拍卖和出租,由买地者去建制衡宇。7、给水、排水系统:包罗取水工程、输水工程、清水工程、配水管网(上下水道),排水管网(下水道)、污水处置、排下班程。8、地盘国度所有权:指做为地盘所有者的国度,对本人所有的地盘依法享有拥有、利用、收益和处分的。9、地盘集体所有权:指农村劳动群众集体经济组织,正在法令范畴内对本人所有地盘享有拥有、利用、收益和处分的。法令意义:地盘所有者将地盘当成本人的财富,垄断、具有对地盘安排的。经济意义:指地盘所有者凭仗对地盘的垄断获得必然的经济收入的。1)小我身份证及复印件各3份,成婚证或流动生齿未婚证明;2)首期购房款(不低于30%,二次购房者首付不低于40%)购房人已付购房款收条原件及复印件;3)律师费,贷款额1。8‰(交律师事务所);4)存案登记手续费,每份合同20元(交房地产局);3)投入工程总扶植资金达到20%以上(不含地盘出让金);4)施工进度已明白,交房日期已明白;它是一个出色、特殊的、无处不发卖、人人都利用、升值空间大、风趣、、有成绩感、熬炼人,上不封顶收入的一个较矫捷、普遍、分析性的一个行业。五声四语:送客声---称号声---称谢声---送客声否决四语:语---焦躁声---否认语---斗气语5、建建面积必需高于2。2米(低于2。2米的车库,杂屋没有产权),建建如配套泅水池、车库等不算面积);7、商圈:称之采办圈或商势圈,指正在必然的经济区域内以商场或贸易区为核心向四周扩展构成的辐射力量,对顾客吸引而构成的必然范畴或区域。分为:焦点商圈:以大型商场为核心,生齿占60-80%,价钱高;次级商圈:具有客户占20%;边缘商圈:分布密度小,产物低档,价钱低。1)价钱构成=地盘成本价钱+建安成本+利润+办理费用(国平易近出产总值,DTP指数、房地产政策、法令律例);2)影响房地产要素:开辟商实力、经济立场、地段、交通、周边、配套设备、绿化、升值、规划、潜力、客户定位、产物设想、物业办理、市场供求、品牌、发卖技巧、天然不成复制;3)影响每一栋单元的价钱要素:楼层层高、户型、朝向、景不雅、外围功能、面积、建建布局;4)多层:7层以下,金三银四铜五六;高层:7层以上,越往高上走价钱越高,越往上景不雅越好;5)影响商铺:升值潜力、地段、交通、配套、市场、定位(业态定位)、消费群、品牌、人流量、物业办理。针对每一个铺位影响要素:、面积(面积小、面积消费群体多,价钱高)、楼层、铺型(柱、开间、)、具体查询拜访体例:问卷、街访(入户走访、单层、左手入门、双手左手入门)、专家、市场客户;风水宝地:依山伴水,龙脉(建建物的朝向的选择。阴:山之南、水之北;阳:山之北、水之南;龙椅之地:绿色是生命色;中纬度:夏吹东南风、西南风)地盘利用证、房产证(集资房是没有产权证的,福利房是有产权证,能够让渡,正在国度答应的年限内能够让渡、出租)。:周边所表示的元素:生态、人文、地舆、交通。一个楼盘的包罗:绿化、交通、密度、配套设备、日照、朝向。1)加权比力法:正在价钱上及敌手比力加X%或减X%,不跨越1;如对方1000元/㎡+1000元/㎡*10%=1100元/㎡;反之1000元/㎡-1000元/㎡*10%=900元/㎡;2)盈亏均衡法3)经验评估法:按照以往经验来测标,价钱阻力位针对顾客来说,内容包罗:均价、起价(感化,降低入市门槛、一般是低开高涨,只对于大型楼盘、而小规模楼盘不宜采用低开高走)、最高价(最好的楼层必定是最高价)、垂曲价钱(一般金三银四铜五铁六,跨越27米空气质量越差)、价钱的可塑性(有营销手法:营销突围,侧翼进攻,通卡位,最多客户消费场合。如俱乐部、酒吧、歌舞厅、高尔夫、通过派人进入上述场合取期接触、吸引顾客、实行营销,节流告白费及其它费用。



